Descrição
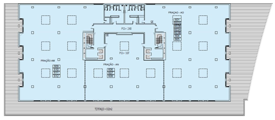
Disponível para arrendamento, este escritório de 2533 m² ocupa o 6º piso do Edifício Altejo, em Marvila, com flexibilidade para divisão (a partir de 607m2). O espaço é entregue em CAT-A, incluindo climatização (HVAC), iluminação integrada . Privilegia de uma vista panorâmica sobre o Rio Tejo e excelente luz natural. O imóvel oferece acesso a um terraço comum, estacionamento privativo e está inserido numa zona em forte crescimento, a poucos minutos do Parque das Nações e do Aeroporto.
Certificações

Localização do Imóvel
País: Portugal
Zona: Lisboa - Cidade
Cidade: Lisboa
Detalhes do Imóvel
Preço: Sob Consulta
Área Mínima (m²): 607
Manutenção, Consumos e Limpeza: Espaços Comuns
WC´s: Comum
Principais Eixos Viários: A2/ A1/ A36/ A8
Área (m²): 2,533 m2
Área Máxima (m²): 2533
Disponibilidade imediata: Sim
Segurança: 24h / dia
AVAC: Instalado
Copa: Não
Linhas de Autocarro: 210/ 728/ 781
Estações de Comboio próximas: CP Braço de Prata







