Descrição
O Edifício Q37 (Plaza II) faz parte do ecossistema empresarial da Quinta da Fonte, localizado em Paço de Arcos, Oeiras. É um imóvel de prestígio que combina uma localização central dentro do parque com infraestruturas modernas de escritório. Características do edifício: Localização e Enquadramento: Situado na Rua da Quinta da Quintã, beneficia da proximidade a áreas de lazer e serviços centrais do parque empresarial Quinta da Fonte Business Ecosystem. Eficiência e Sustentabilidade: Tal como outros edifícios renovados no parque, o Q37 está integrado no processo de certificação ambiental BREEAM In-Use, com o objetivo de atingir a classificação de “Excellent”. Especificações Técnicas: Pisos: O edifício dispõe de vários pisos de escritórios (incluindo o Piso 0 com acesso direto ao pátio/plaza). Climatização: Sistema HVAC moderno e eficiente. Segurança: Segurança física no local e sistema de CCTV 24/7. Comodidades: Acesso a estacionamento privado e proximidade a zonas verdes e áreas de restauração dentro do próprio complexo.
Certificações


Localização do Imóvel
País: Portugal
Zona: Eixo Lisboa - Cascais
Cidade: Oeiras
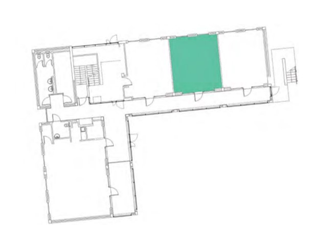
Detalhes do Imóvel
Preço: Sob Consulta
Área Mínima (m²): 120
Manutenção, Consumos e Limpeza: Espaços Comuns + Escritórios
Pavimento: Calha Técnica
WC´s: Comum
Principais Eixos Viários: A5/ A9/ IC19
Área (m²): 120 m2
Área Máxima (m²): 120
Disponibilidade imediata: Sim
Segurança: 12h / dia
AVAC: Instalado
Copa: N/D
Certificação: BREEAM
Linhas de Autocarro: Valley Shutlle
Estações de Comboio próximas: CP Paço de Arcos










